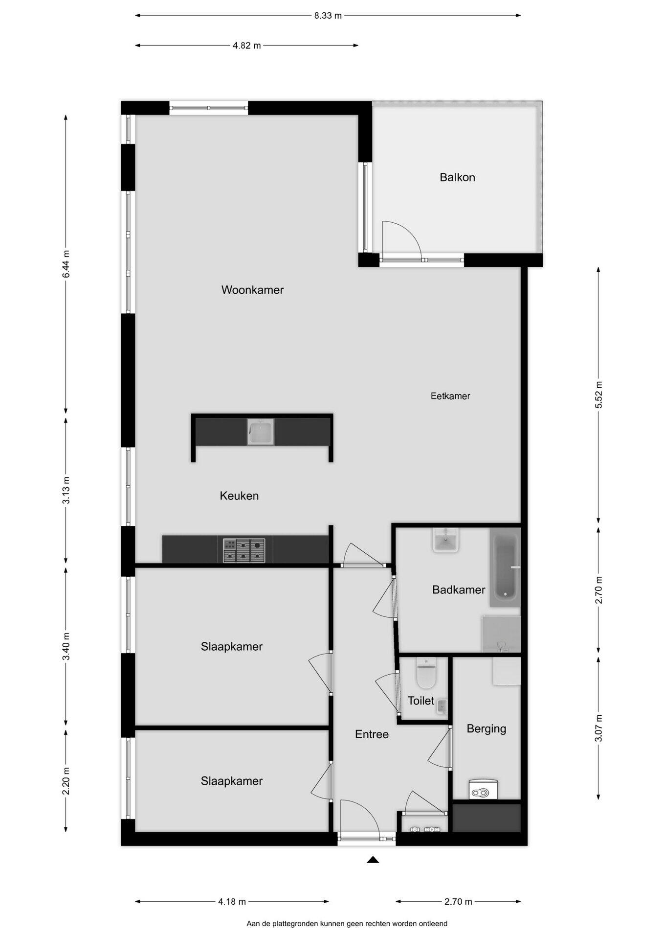
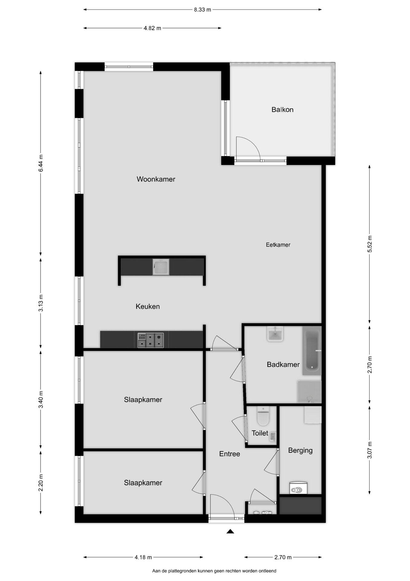
Woonoppervlakte
Circa 119 m²
Inhoud
Circa 380 m³
Bouwjaar
Gebouwd in 2004
Aantal kamers
3 kamers (2 slaapkamers)

Koningin Wilhelminastraat 98

8606 BZ, Sneek (Fryslân)

Als je dan die stap gaat nemen om naar een appartement te verhuizen, dan moet het ook een goede stap zijn. Dus nee, niet zo maar een appartement, maar een heerlijk comfortabele plek om zorgeloos te wonen. Een plek waar je in alle rust kunt genieten, het liefst met twee slaapkamers, een flink balkon, en als het even kan een eigen parkeerplaats. Nou, hier is ie dan, welkom aan de Koningin Wilhelminastraat!

Zoals gezegd, parkeren doe je dus op je eigen parkeerplaats. Via een achterdeur kom je binnen. Hier kun je ook met de fiets langs op weg naar je eigen fietsenberging. Op de tweede etage stap je uit de lift en kom je het appartement binnen. En dan gebeurt het: dit appartement heeft een 'wauwfactor". Wauw vanwege de ruimte, het licht en het fraaie uitzicht. De woonkamer is op een hoek van het gebouw en geeft je rondom een mooi zicht op de omgeving. Achter de vrijstaande muur de moderne keuken die recentelijk aangepast is met een moderne frisse kleur.

Er zijn in dit appartement twee slaapkamers, een moderne badkamer en een separaat toilet. Daarnaast is er een berging met onder andere plek voor je wasmachine.

En dan het balkon. Eigenlijk gewoon een terras, ruimte voldoende voor een loungebank of tuinset. Heerlijk vrij, beschut en nodigt je uit om hier heerlijk van het zonnetje te genieten.

Dit gebouw met 17 appartementen heeft een gezonde vereniging van eigenaren met een flinke reserve. Je bijdrage is € 263,- per maand. Daarvoor heb je het onderhoud en de opstalverzekering.
Binnen 5 minuten wandelen ben je bij het Rasterhoffpark, 10 minuten wandelen in het centrum en met 2 minuten autorijden zit je op de rondweg. Lekker centraal gelegen dus!
Voor meer info bekijk dan ook even de video en de eigen website van dit appartement: koninginwilhelminastraat98.nl

Vorstelijk en comfortabel wonen in dit heerlijke appartement. Lijkt dit je iets? Kom dan eerst even kijken. Bel of mail ons voor een afspraak, we laten deze woonbeleving graag aan je zien. Tot ziens!

Plattegronden

Overdracht

Vraagprijs
€ 489.500 k.k.
Status
Verkocht
Aanvaarding
In overleg
Bijdrage VvE
€ 263 p/m

Bouw

Object type
Portiekflat, appartement
Soort bouw
Bestaande bouw
Bouwjaar
2004
Soort dak
Plat dak bedekt met bitumineuze dakbedekking

Oppervlakte en inhoud

Woonoppervlakte
119 m²
Inhoud
380 m³
Externe bergruimte
6 m²
Gebouwgeb. buitenruimte
12 m²

Indeling

Aantal kamers
3 kamers (2 slaapkamers)
Aantal badkamers
1 badkamer
Badkamervoorzieningen
Douche, wastafelmeubel
Aantal woonlagen
1 woonlaag
Voorzieningen
Zonnepanelen

Energie

Energielabel
A
Energielabel registratie
05-08-2025
Isolatie
Dakisolatie, muurisolatie, vloerisolatie, dubbel glas
Verwarming
Cv-ketel
Warm water
Cv-ketel
Cv ketel
Combiketel gas gestookt uit 2021 (eigendom)

Buitenruimte

Balkon / dakterras
Balkon
Tuin
Geen tuin

Bergruimte

Schuur / berging
Inpandig
Voorzieningen
Voorzien van elektra

Garage

Soort garage
Geen garage

Parkeergelegenheid

Soort parkeergelegenheid
Op eigen terrein

VvE checklist

Inschrijving KvK
Ja
Jaarlijkse vergadering
Ja
Periodieke bijdrage
Ja, € 263 p/m
Reservefonds aanwezig
Ja
Onderhoudsplan
Ja
Opstalverzekering
Ja

Energieverbruik in Sneek

Energielabel deze woning

Energielabel A

Publicatie energielabel: 05-08-2025

Stroomverbruik per jaar

1740 kWh

(Gemiddelde appartement in Sneek)

Gasverbruik per jaar

810 m³

(Gemiddelde appartement in Sneek)

* Cijfers zijn afkomstig van het CBS en bedoeld als indicatie en kunnen verschillen voor deze woning

Indicatie hypotheeklasten

Eigen inleg:
Spaargeld / overwaarde

Rente:
Laagste 10-jaars rente

Laagste 10-jaars rente

2,85% - Centraal Beheer Groen... - NHG


3,08% - Centraal Beheer Groen... - 80%

Laagste 20-jaars rente

3,29% - Centraal Beheer Groen... - NHG


3,52% - Centraal Beheer Groen... - 80%

Laagste 30-jaars rente

3,41% - Centraal Beheer Groen... - NHG


3,74% - Centraal Beheer Groen... - 80%


Hypotheek:

Bruto maandlasten: € 0 p/m

Netto maandlasten: € 0 p/m

Hoe berekenen we dit?

Het rentepercentage is gebaseerd op de laagste 10 jaars vaste rente voor één hypotheekdeel. De vermelde rente (3.08% zonder NHG) is gecontroleerd op 09-02-2026. Deze berekening is gebaseerd op een annuïteitenhypotheek die volledig wordt afgelost, waarbij de maandlasten gedurende de gehele looptijd gelijk blijven. De werkelijke rente en netto maandlasten kunnen variëren, afhankelijk van uw persoonlijke situatie en de hypotheekverstrekker. Raadpleeg een financieel adviseur voor een nauwkeurige berekening en advies. Aan deze berekening kunnen geen rechten worden ontleend; het dient enkel als indicatie.

Documentatie

Zonnegrenzen bekijken

Op de kaart

Inwoners in Sneek

Cijfers voor postcodegebied 8606

Totaal aantal inwoners
2765 inwoners
Mannen
50%
Vrouwen
50%

Inwoners in Sneek

Cijfers voor postcodegebied 8606

tot 15 jaar
12%
15 tot 25 jaar
10%
25 tot 35 jaar
22%
45 tot 65 jaar
29%
65 en ouder
27%

Huishoudens in Sneek

Cijfers voor postcodegebied 8606

Eenpersoons zonder kinderen
50%
Meerpersoons zonder kinderen
26%
Huishoudens zonder kinderen
76%

Huishoudens in Sneek

Cijfers voor postcodegebied 8606

Huishoudens met één kind
7%
Huishoudens met meerdere kinderen
16%
Huishoudens met kinderen
23%

Woningen in Sneek

Cijfers voor postcodegebied 8606

Woningen voor 1945
43%
Woningen tussen 1945 en 1965
1%
Woningen tussen 1965 en 1975
1%
Woningen tussen 1975 en 1985
6%
Woningen tussen 1985 en 1995
18%

Woningen in Sneek

Cijfers voor postcodegebied 8606

Woningen tussen 1995 en 2005
17%
Woningen tussen 2005 en 2015
14%
Woningen na 2015
1%
Huurwoningen
40%
Koopwoningen
50%

Overige in Sneek

Cijfers voor postcodegebied 8606

Gemiddelde WOZ waarde
€ 168.000,-
Personen onder de 65 met uitkering
14%

Overige in Sneek

Cijfers voor postcodegebied 8606

Adressen per km²
1855
Stedelijkheid (schaal 1 op 5)
80%
Postcode kaart 8606 Gemeente kaart súdwest-fryslân

Korte feiten over Sneek

Sneek (Fries: Snits) is een stad in de gemeente Súdwest-Fryslân, in de Nederlandse provincie Friesland.

Kuperus Heeringa Makelaardij

Indien u vragen heeft of u wilt een bezichtiging inplannen, dan kunt u gebruik maken van het formulier hiernaast. Er zal daarna op korte termijn contact met u worden opgenomen.

Kuperus Heeringa Makelaardij

Wij zijn Klaasjan Kuperus, Saskia Heeringa en Brecht de Vries. Klaasjan is een gecertificeerd makelaar met een bouwkundige achtergrond, Saskia is een professionele styliste en Brecht is onze assistent-makelaar. Onze passie voor huizen en mensen heeft ons in de makelaardij gebracht! We begrijpen dat de aankoop of verkoop van een woning uniek, bijzonder en emotioneel is. Daarom staan persoonlijke aandacht en betrokkenheid bij ons voorop. We behandelen elke verkoop of aankoop alsof het ons eigen huis is en vinden het belangrijk om een persoonlijke band te hebben met onze klanten. We houden van een grapje op z'n tijd en plezier staat centraal in ons werk.

Onze visie - We maken van jouw huis een unieke beleving.

Kuperus Heeringa Makelaardij
Reviews Kuperus Heeringa Makelaardij

Koningin Wilhelminastraat 98, Sneek

€ 489.500 k.k. - Verkocht

Helaas, deze woning is verkocht!

Net te laat, deze woning is al verkocht. Laat een zoekopdracht bij ons achter zodat wij u direct kunnen helpen wanneer er nieuw aanbod beschikbaar komt.